Interior Design
Project

(Corporate Project)

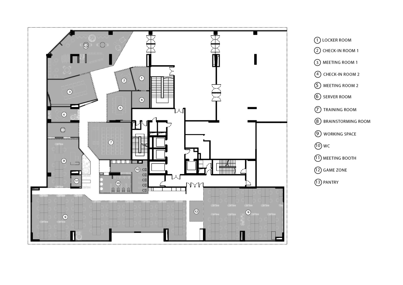
This office was tasked with the design & build service for the Commerce office, which would house up to 140 fully energetic employees. The main goal was to activate the space into one that energizes creativity and attracts the top talents, a space that is vibrant, transparent, and inspires a greater sense of collaboration as well as productivity. We successfully translated their culture and preferences for into the design concept dominated by the mixture of modern & contemporary design styles.

LET’S TALK LET’S PLAN LET’S BUILD

LET’S WRAP UP Stroke-948